
昨日広島市に建築中の「緑の家」の足場ばらし前のチェックに伺ってきた。ホントにいつも天候が悪く豪雨の中の着陸で大きく長い時間揺れた。

しかし次の日現地に伺う前には豪雨はやんでおり晴れ間が戻り気温は28度まで上がる。
さて・・・
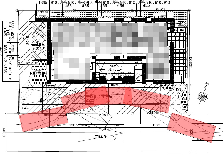
この「緑の家」の基本計画はこの前面道路の往来状態を見た時から始まった。

前面道路は一方通行であること、その道路との接している境界が長いことを生かして駐車方法は、一般では嫌われる縦列駐車を選択した。このように計画すると駐車時はそのまま頭から入り、そのまま方向転換をすることなく出庫できるので、車や人通りが多いところではストレスは小さい。加えて唯一の大きな窓先空地がさらに大きくなる。

この計画ありきで建物の配置は決定している。確かに田舎とは違い広島市は大都市のため、車より電車などの公共交通機関や自転車のほうが便利だが、次の世代や、来訪者を考えると自車2台と予備1台で3台くらいは止められるようにしたい。

また高基礎であるため、周囲にある3階建てにも引けを取らない高さにまでなっていて、それだからこそ光庭が生きる。この光庭の計画は大成功で、どこからも覗くことはできないので、プライベートアウトドア空間が出来上がる。そのため道側に開く大きな窓はコーナーサッシだけとなり、南側にもかかわらず白い外壁が大半を占める独特の感じ。しかしそれだけだと折角の窓先空地が生かせなく、光庭そのものにも光を招き入れたいので、光庭1階の一部に2m×2.5mの穴をあけ光は透過するが視線は塞ぐパネルをはめ込む。このパネルのおかげで光庭に現在お育て中の鉢植えをおいても光を十分に浴びられる計画とした。




玄関位置は縦列駐車を優先していたため独創的な位置となり、一番右端から階段で玄関にあがる。高潮の影響もある地域なのでできるだけ高い位置で道路から1.7m上に玄関戸がある。当然隣家はすぐ玄関の前になり、現在その隣家は壁だけだが将来の建て替えで変化することも見込み、隣家側に目隠しになる壁を屋根から設けた。しかしあまり壁で覆うと防犯上不利なため足元だけオープンにし防犯上も有効とし、且つ防火壁として換気口なども通常のタイプを使えるようにしている。階段は狭いながら木で囲むことで圧迫感をへらす工夫を行う。ここは準防火地域という延焼防止に対して厳しく規制をされている地域なので玄関や壁は防火仕様である。しかしこのような地域でも下のとおり工夫をすれば外壁に木を貼ることは可能で、このため柔らかい感じで圧迫感を和らげる。



玄関前は閉ざされた空間になるが、実はここには意図ががあり・・・この一番狭いところから入って家の中に進むほど空間は広く明るくなっていく。このような演出はより感動を生む空間づくりの定石である。





このように室内から近隣の見え方は想像通りであり、日中でも下窓だけにカーテンがあれば上窓はカーテンはいらない。コーナーサッシの上部はいつも青空窓となる。

コーナーサッシを背に振り替えるとキッチンとダイニングテーブルが一直線上になる空間と光庭のウッドデッキが見える。

光庭を上から見ると下の写真のように屋根に穴が開いているような感じとなる。

この光庭があるおかげで、光庭に面している2階の窓から見ると、周囲の建物は見えず完全に独立した屋外空間となる。



道路を挟んで3階建てが軒並みあるのだが、基礎が高いこともあり下の写真でわかるとおり空しか見えない位置まで壁で囲うことができた。


こちらの「緑の家」には2階には5つの部屋がありその中で2つが書斎、一階に2か所のデスクワークスペースを持つので4か所のデスクワークあるが下は2つの書斎である。

書庫(書斎1) 
書斎2
内部はまだ仕上げ前だが、仕上げをするといつもの「白」色が中心となるのでイメージとしては下のようになる。

都市部に住まうことは便利な面が多く魅力的であるが、その一方で近隣ととても近くて窓を開けられない(外を眺められない)というジレンマがあるが、光庭を設ける事でその欠点を克服できる。特に細長い敷地の場合には光庭が大変効果的である。

