当面このページはトップに固定する。また適時更新。最新更新は2026.02.16
「風呂場に排気用換気扇は不要」とネットで宣言し、初採用から16年経過し13年前に全設計で採用とした風呂CFが、今年(2022年)に入ってから一日一度はお風呂CFのことをメールで返信しているくらい問い合わせが多い。その都度お答えするのは大変だからこのブログで「緑の家」設置マニュアルとして公開する。わかりやすいように要点のみ記載する。
続きを読む当面このページはトップに固定する。また適時更新。最新更新は2026.02.16
「風呂場に排気用換気扇は不要」とネットで宣言し、初採用から16年経過し13年前に全設計で採用とした風呂CFが、今年(2022年)に入ってから一日一度はお風呂CFのことをメールで返信しているくらい問い合わせが多い。その都度お答えするのは大変だからこのブログで「緑の家」設置マニュアルとして公開する。わかりやすいように要点のみ記載する。
続きを読む
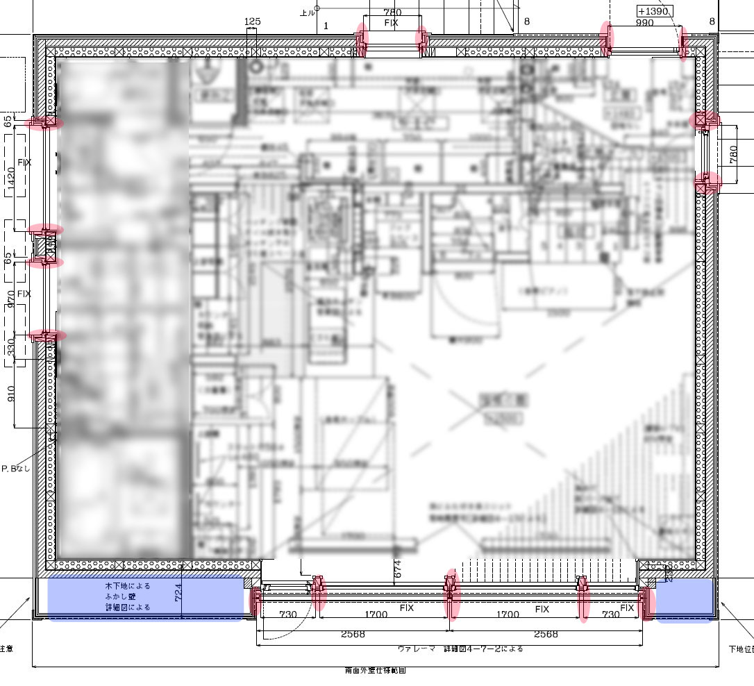
上は実際の「緑の家」の1階平面図である。ご要望で省令準耐火構造の適用を受けるための仕様になっている。通常「緑の家」では内装に木のむき出しの構造材があるためと余計なコストがかかるため省令準耐火構造を積極的に勧めてはいない。しかし今回省令準耐火構造を採用にするにあたって調べると意外なことがわかった。それが今回の題名の防火構造認定は付加断熱構造と相性が悪いこと。今回の話題は省令準耐火構造と防火構造の2つであり、一般の方には単語だけでも難しい話題であることを最初にお断りする。
続きを読む
昨日積雪1mを超える長岡市の「緑の家」のメンテナンスに伺ってきた。真っ白い雪景色に覆われ、白い綿の景色に同化する白い「緑の家」は可愛い。しかもこのコーナーサッシでこんな雪の降る日でも、室内の照明がなくとも明るいことが、幸せ感に満たされる。
続きを読む
先週末は里雪とよばれる山間部より平野部で広く降雪があった。そのため土曜日に建物から車を出せなくなったとの事で、急遽夜のotomo vie centで雪かきを行った。
続きを読む
冬期の一般的な室内では室温が上がるとRH(相対湿度)が下がる事が知られている。ところが事務所内では室温を上がるとAH(絶対湿度)が上がり当初はRH(相対湿度)が下がるが直ぐにRH(相対湿度)が上がり、室温を上げてもRH(相対湿度)はあまり変わらない不思議な現象が起こっている。
続きを読む
2026年はotomo vie centで迎えた。昨年も同様だったが一昨年は元旦に大きな地震があって事務所内部家具が倒れたため正月はなかったのも同様で、そこから見ると今年は穏やかに過ごすことができた。
続きを読む
誤解というより「人それぞれ」という表現に近いのかもしれないが・・・
人が感じる快適温湿度にはそれぞれ差がある。例えば人が3歳までにどこでどのように生活していたかは、人の温湿度に対する快適性に大きな影響を及ぼすという研究結果の論文は多く、既に定説となっている。
続きを読む
昨日スズモクの鈴木さんと意見交換していた時に、「これはしっかりと訂正しておく必要がある」と思ったことは風呂CFの事だ。上のスクリーンショットは当事務所の13年前の過去のHPであるがが(現在も当然見る事が可能)、確かにタイトルは「業界が震撼!浴室に換気扇(排気用)入らない」とあるが、排気用換気扇を設置しないとは言っていないし、写真を見てわかる通り排気用換気扇はあり、また稼働させることも可能。つまりこの宣言をした当時から現在までの「緑の家」では、風呂CFは100%は設置され、排気用換気扇も98%※が同時設置されている。
※一軒だけが建て主さんのご要望で排気用換気扇が非設置。

昨日7日、埼玉県川越市で建築中の川越桜堤の家の耐力壁検査に伺ってきた。朝6時30分に事務所を出発。9時30分到着して検査と打ち合わせが終わったのが13時30分。スタッフMと2人で行って検査しても結局4時間かかり、しかも昨日は埼玉は曇りで気温が摂氏3~6度くらいまでしか上がらないので、終わるころには足の感覚がなくなった。帰りは17時30分事務所着で10時間の工事監理となる。
続きを読む
昨日は仕事初めだったが、朝8時15分から夜の19時10分まで約11時間通しての打ち合わせが事務所内で行われた。
続きを読む
otomo vie centで年越しとなりここでも元旦にまとまった雪が降った。上左は年越しの0時で起きたらすでに除雪車が通って道はきれいだが真っ白な風景に。
続きを読む
広島県に「緑の家」の2棟目が完成した。一棟目は今から24年以上前(2001年)の頃だから、このブログに記録はないが東広島市に建築されている。当時は工事監理ができなかったが、今回は工事監理を行うことができて大変よかった。工事監理はやはり設計の最終仕上げと思うので、建て主さん側の代理者として設計者の矜持が表れそして設計は正しかったか一つ一つ間近で自身が試されるのである。
続きを読む
先日お引き渡しから9年と11ヶ月の「緑の家」の有料点検に伺ってきた。10年経過すると瑕疵担保保険がきかなくなるので10年前にメンテナンスのご案内をしている。そのメンテナンスの終わりに頂いたコーヒーがとてもおいしかった。
続きを読む

上の写真はある2棟の「緑の家」の耐力壁検査に伺った時の生のチェックリストである。いずれも伺う前に施工会社さんの自社検査を受けた後に、私どもで検査した時のもである。赤字が是正項目であり、現地で付箋なども付けている。
続きを読む
「緑の家」はご存じのとおり床高が一般の家の3倍近い高さにある。この為玄関への階段の段数は通常より5段程多いが、写真のとおり上がりたくなる雰囲気を創り出しお客様を招き入れるよう。各性能はトップクラスで大半が防火サッシなのにUa値0.22W/m2kで等級7(G3)、耐震等級3である。
続きを読む
今は多くの人が行う床下エアコン暖房であるが、計画通りに風が吹き出されるようにする理屈を知っている人は多くない。そこで今回の完成検査において広島南区の家は少し大きめの床下空間を持つので、久しぶりに床下と床上の差圧を測り、その圧力がどのように変わるかチェックする。
続きを読む
この12月から国は一次エネルギー消費量は等級7,等級8を新設する。等級7は基準値から30%以上削減(BEI≦0.7)、等級8は35%以上削減(BEI≦0.65)となり、従来の最高等級である等級6(20%削減)よりも高い省エネ性能を要求される。このBEIが殆どの補助金の基準となる大事な数値。しかし大事な評価値が省エネという大義に矛盾するので、早くこの算定をやめるほうが良いと考えている。
続きを読む
今週末に完成チェックに訪れる広島県広島市に建築中の「緑の家」の光庭の効果をチェックするために永本建設さんから写真を送って頂いた。
当日は簡易的な見学会も行うがもしご希望があればご連絡をしてほしい。光庭と高基礎の床下収納の実物がみられるのでお近くの人なら参考になると思う。
日時は12月7日で10時30分から15時くらいの間なら完成チェックを行っているのでご案内が可能。連絡先は↓
メール→arbre-d2@nifty.com(日本語部分を消してください)又はお電話で
尚性能は長期優良を取得。Ua値は防火ガラスでも0.22w/m2kで耐震等級3。

木造住宅等の耐力壁を構成する部材として「筋かい」があるが、筋かいの材料については以前からほとんどの工事現場で正しい材料を使っていないと申し上げているが、今回は正しい材料について説明する。
続きを読む
定休日の昨日、otomo vie centの奉仕として実質10年ぶりに羽釜でご飯を炊き上げた。この母屋で初めてのごはん炊き。
続きを読む


国内で冬季の日射量が国内トップクラスの埼玉県と、比較的多い大阪府で計画中の「緑の家」の南側のガラスが全てグリーンガラスで決定した。
続きを読む
その1では確認申請を仕様規定でおこう事で省エネ適判(一次エネルギー消費計算)を使用しない時の非合理性を書いたが、その2では確認申請時に添付する省エネ適判を申請する時に必須な一次エネルギー消費算定についてそのプログラムからの見解である。そもそも一次エネルギーとは、石油、石炭、天然ガス、水力、原子力、太陽光、風力など、自然界に存在するままの形で得られるエネルギー源。そこから加工されたエネルギーが電気であるため、電気で動く家電は電気がつくられために必要な化石燃料等に換算されて一次エネルギー使用量となるが、大体換算値は0.4(2.4)くらいになる。
続きを読む
10年経った「緑の家」からの依頼で10年目メンテナンスに伺ってきた。
外壁はいつものガルバニュームの「白」で雨がかりのない玄関付近だけは木貼りでガルバニュームの欠点である雨がかりのない部分の劣化を防いでいる。
この4月から確認申請時に断熱仕様が審査項目になり、断熱性を仕様規定か詳細計算の必要な省エネ適判かを選んでいるが、読者さんなら省エネ適判を選んでいるだろうと思う。その省エネ適判の審査の時に一次エネルギー算出が必要になる。
続きを読む
昨日の定休日にotomo vie centで奉仕をしてきた。ようやく薪ストーブと竃の煙突本設置が終わった。「て・こあ」と同様に2本合流させて150φで抜く。鉛直部分はシングル煙突で水平部分から先の屋外すべてが断熱2重煙突である。
続きを読む
来月広島県広島市で現在建築中の「緑の家」の完成前検査に12月6日、7日と伺うので、折角だから現地プチ見学会を行う予定。
日時:12月7日(日)の10時~16時の間 (時間任意)
当日はスタッフと完成検査を行っているのでご覧頂きたい方はご連絡してほしい。ただ、検査も同時間に行っているので詳しく内部を説明できないかもしれないが、この機会に「緑の家」をご覧いただきたい方は是非どうぞ。場所は広島市南区で電鉄なら「ゆめタウン広島」がある「皆実町6丁目」の駅から徒歩2分くらいの場所。連絡を頂いた際に詳しい地図をお送りする。
◇概要 耐雪0.3m、Ua値0.22w/m2Kの超高断熱高気密。 また耐震等級3で長期優良住宅も取得しGX志向型住宅の補助金取得。科学的に裏付けされた堅実で無難な仕様。
◇予約方法:メール→arbre-d2@nifty.com(日本語部分を消してください)又はお電話で
◇写真は後日アップ
続きを読む
「日本」という私たちの国の名前はいつ始まったのか知っているだろうか。実はこの足利市にある足利学校遺蹟図書館内で保管されている「宋版」の中に記されている。
続きを読む
時が流れるのは早いもので以前HPのトップを飾っていた家富町の家の10年目のメンテナンスに伺ってきた。何しろ外壁の杉板が良い変化しており、美しい。当然性能は当時からUa値0.29w/m2kと超高断熱で耐震等級3である。
続きを読む
上の写真をご覧いただきたい。排水や給水などの設備が基礎を貫通する穴の位置だが、今回は地上から850mm付近に計画している。
続きを読む