
今は多くの人が行う床下エアコン暖房であるが、計画通りに風が吹き出されるようにする理屈を知っている人は多くない。そこで今回の完成検査において広島南区の家は少し大きめの床下空間を持つので、久しぶりに床下と床上の差圧を測り、その圧力がどのように変わるかチェックする。

既に7日間以上床下暖房を稼働し、室内温度や一階床面温度が均一になることをサーモなどで確かめた上で微差圧計によって床下と床上の圧力差を調べる。
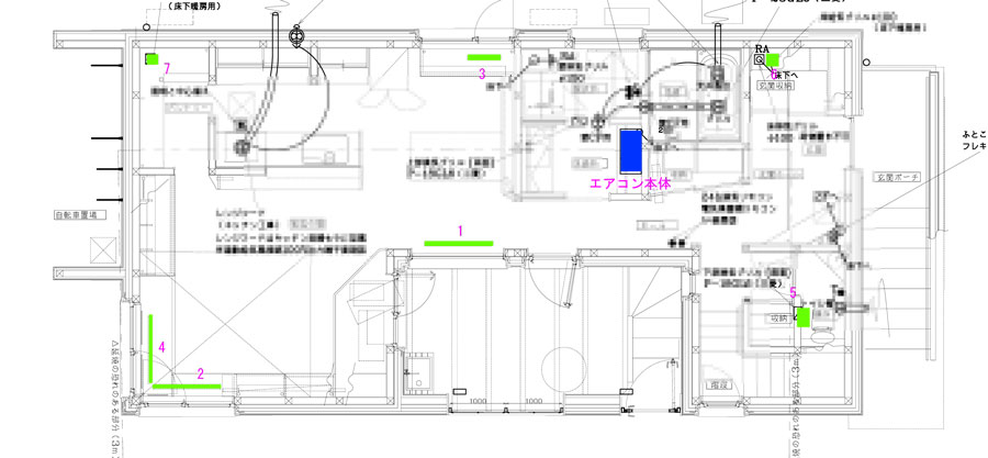
床下エアコンと各吹き出しの配置は上の図のとおりで、吹き出し口は大小合わせて7つもある。最近の「緑の家」では数が多い計画である。エアコン本体は建物中央から右寄りの定番の洗面所に設置されており、吹き出し口は大きなサッシがある真下でコールドドラフトを防ぐ目的で1、2、3、4を設置。また建物4隅まで均一に暖かくなる目的で2、5、6、7番が設置されている(2は兼用)。
まず全部床下吹き出し口を開放した時の差圧を測ると約3Paとなる。このくらいの差圧があると確実に各吹き出しからでている。

ここから順次各位置の吹き出しの蓋を閉じていく。まず1の蓋を閉じると、
約3.9Paと0.8Pa上がる。次に2の蓋を閉じると
約4.8Paと0.9Paあがる。次に3を閉じると、
約5.3Paとなり0.5Paあがる。次に4を閉じると
約7.1Paとなり1.8Pa上がる。この4は他の開口より少し大きいので急に上がるのだろう。次に5を閉じると
約8.5となり1.4Paあがる。この開口部も大きいのでこの差がつく。次に6を閉じると
約9.3Paとなり0.8Pa上がる。最後に7を閉じ全部閉じた時には
約9.7Paとなり0.4Paあがる。
このように開口部を閉じると確実に圧力はあがり、全開でも3Paの差があり、その風量の差は、通常面積比で変わることで計画通り風がいきわたる。
そして床下内基壁壁の断熱性をあげることで一階の床方向に熱がより多く供給され均一に近い暖かい床下暖房が出来上がる。過去の実測から床下からの吹き上げ口を全部開放した時に2Pa以上の圧力差が生まれなければ、床下吹き出し口から期待した量の風が出る事は難しい。















